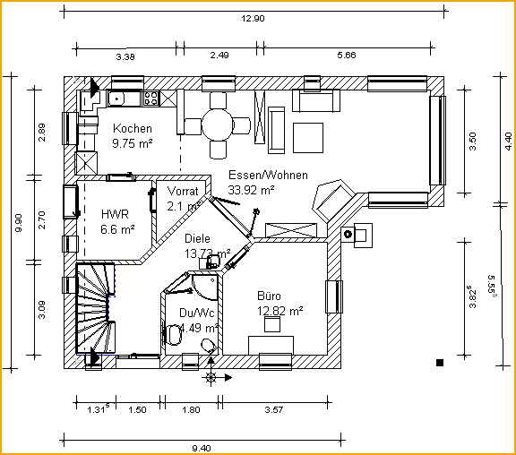
Objekt 3 - Grundriß