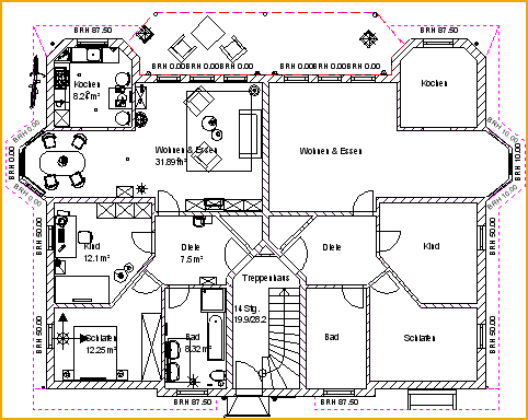
Objekt1 - Grundriß